Creating a jewelry space
When it comes to designing a jewelry shop, the goal is to create a space that feels warm, inviting, and, of course, sweet. Consider incorporating elements such as pastel colors, whimsical decor, and charming signage that reflect the essence of your brand. Think about how you can make your jewelry shop stand out from the rest by infusing it with your unique personality and style.

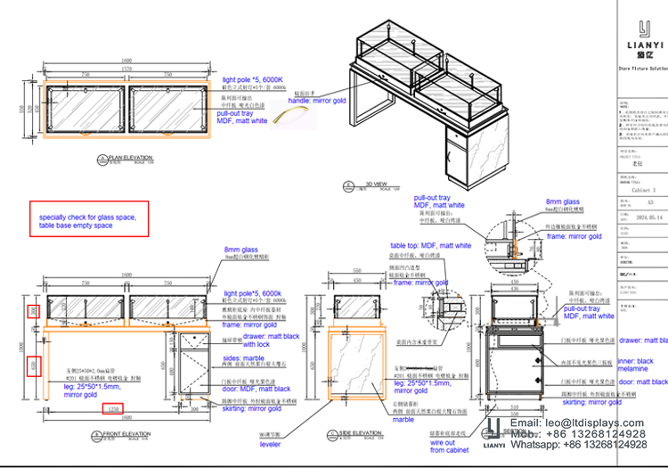
High-end jewelry store showcase customization process
Jewelry showcase as the carrier of the brand is bound to be the image of the company, of course, the company can also show its corporate image through the showcase. Because customers and the outside world have already clearly understood the culture and products of the brand or company. Once the jewelry showcase opens the door of the jewelry brand, it will face to the public vision, and the logo of its own brand will have a certain influence on the society. An enterprise with a good reputation brand will attract more customers to recognize and trust their own jewelry showcase, so unique and brand characteristics of jewelry whole store showcase customization is very important, and high-end jewelry store whole store showcase customization has the following process:

1. Site measurement
The customer needs to measure various sizes in the local area, arrange professional measurement personnel to go to the site measurement, the site needs to have the person in charge of the mall and the customer in charge, the specific requirements of the jewelry showcase in the mall are convenient to run through the whole process, which will also reduce a lot of unnecessary mistakes.
2. Design the diagram
In the early stage, we need to communicate with the customer, and design different renderings according to different grades of different shopping malls in strict accordance with the requirements of the shopping mall. After receiving the measurement of this project and making the drawing, the designer also needs to keep communication with the factory process, because the order is connected to the factory in the later stage.
3. Drawing confirmation
This link is the most important and most prone to problems in the production process of jewelry showcase, which is generally reflected in the two aspects of venue changes and shopping mall production requirements. Venue changes are usually notified to Party A in advance, and Party A timely informs the manufacturer of quality showcase factory to re-measure

4. Quotation confirmation
After the drawing is confirmed, the quality quotation department and the factory will make a detailed project quotation sheet based on the drawing for the customer to confirm and review, and notify the showcase factory to place an order for production after the verification is completed. The contract should contain the detailed amount, bill of materials and matters needing attention. Upon receiving the production notice, the jewelry showcase manufacturer will also send the design flow sheet and final confirmation effect drawing to the factory. The factory then operates according to the details in the documents.
5. Factory production
The factory needs to list the material requisition for this project when it receives the production process sheet for jewelry display cases. The materials used in this project are made above. The workers will go to the warehouse to obtain materials for production according to the specific details of the material requisition sheet. Ensure that the qualified rate of the products before installation of this project is 100%. In this link, the factory must strictly follow the specific requirements in the design flow sheet to avoid some problems. The factory director also reviews the product according to the design flow sheet.
6. Install it onsite
After the production of jewelry showcase, it is necessary to assemble the factory in situ to check the effect, and after confirming that there is no problem, the quality factory can be shipped to the customer's site. Go to the customer's shopping mall to complete the assembly and wait for the customer's inspection.
7. On-site inspection
After the completion of acceptance, the jewelry showcase manufacturer needs to send the acceptance form to the customer to sign, informing the project has been completed qualified operation.

How to Order?
Ordering your jewelry cabinet from our company is quick and easy. First, browse through our collection online and choose the design, size, and finish that best suits your needs. You can also visit our showroom to see our cabinets in person and get expert advice from our team.
Once you've made your selection, contact us through our website or phone and provide us with your details, including your name, address, and payment information. We'll then confirm your order and provide you with an estimated delivery date. Our team will also keep you updated on the status of your order throughout the process.
When your jewelry cabinet arrives, our team will assemble it for you and make sure everything is in place. We'll also provide you with care instructions to help you maintain your cabinet's quality and appearance. With our easy ordering process and excellent customer service, you can trust us to deliver the best jewelry cabinet for your needs.
Ordering a jewelry cabinet from our company is a smart investment that will save you time and space while adding beauty to your home. With our high-quality materials, versatile designs, and exceptional customer service, you can't go wrong. So, what are you waiting for? Get organized with a brand-new jewelry cabinet today!